Residential Building Simple Elevation Design AutoCAD File
Description
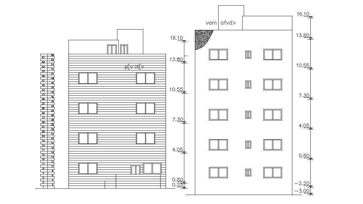
this is the architectural simple four and fifth-floor apartment building elevation with floor levels details, it's a CAD file format, some hatching and doors and windows details in it.
Uploaded by:
Rashmi
Solanki

