Architectural Six Floor Section Residential Building Design
Description
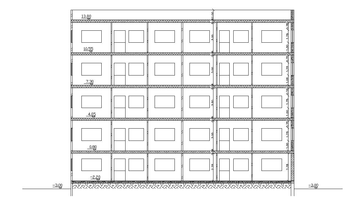
this is the apartment building section with floor levels dimension details some hatching design in it.doors and windows marking in section, flooring material details in it. and other more information.
Uploaded by:
Rashmi
Solanki
