Huge Bungalow Planning With Structure Slab Design CAD File
Description
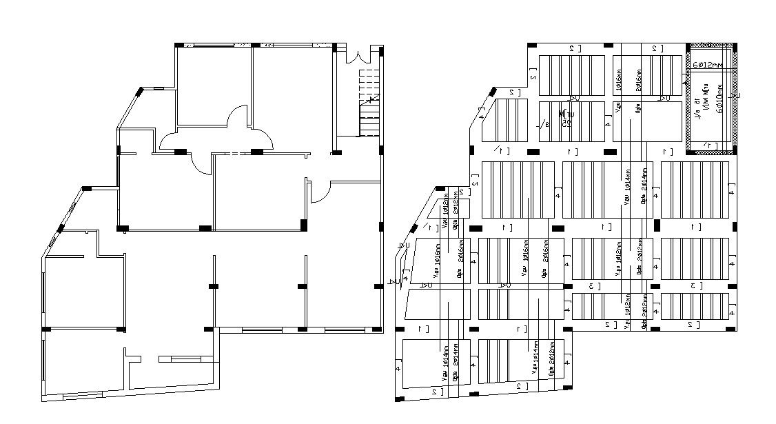
this is the CAD drawing of huge bungalow design with column layout plan, residential building slab design, beam and column marking in structure slab plan, some texting and dimension details.
Uploaded by:
Rashmi
Solanki
