3 BHK Typical Apartment Floor Layout Plan DWG File
Description
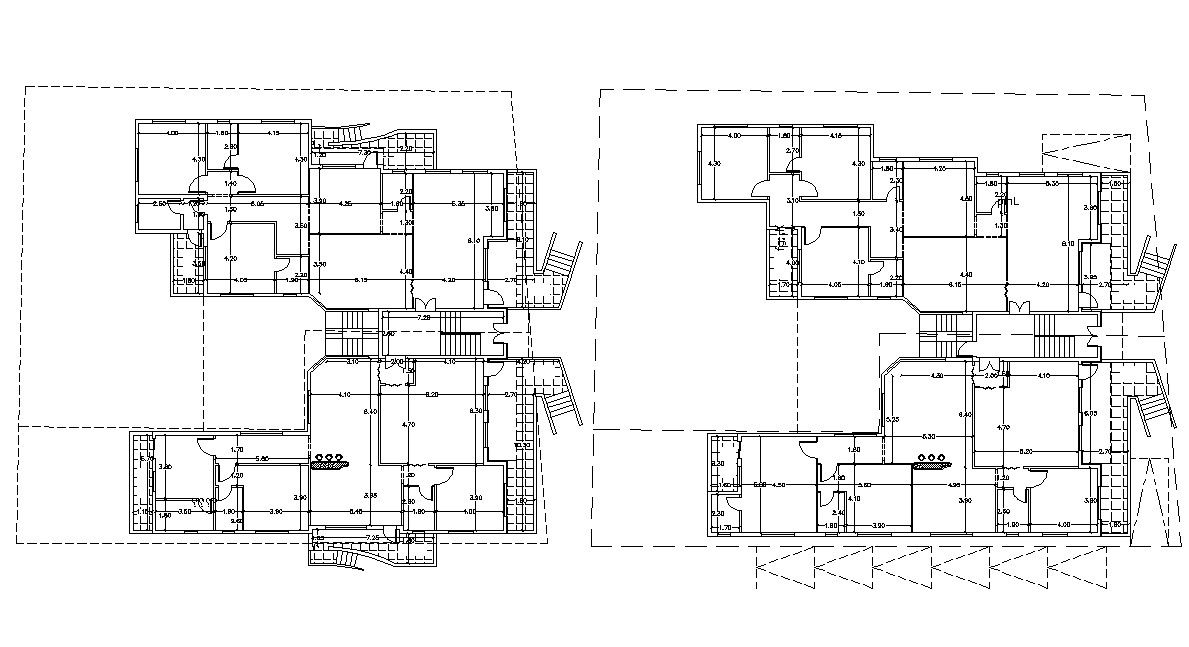
Autocad drawing of an apartment house plan shows Architectural Floor Layout Plan of 3 BHK house with dimension detail CAD drawing which are accommodated on typical floor plan design. download free DWG file of apartment floor plan design.
Uploaded by:

