Architectural Bungalow Floor Plan With Dimension CAD File
Description
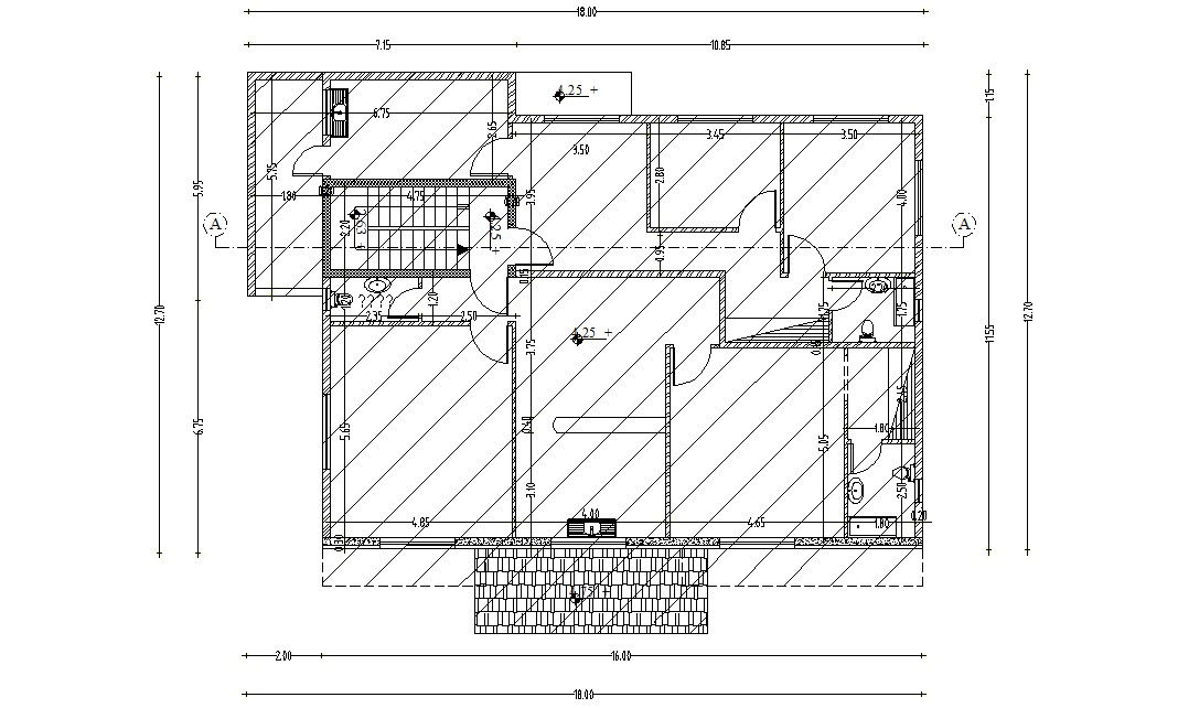
this is the drawing of lavish modern bungalow layout plan with dimension details, section line on plan roof level plan, toilet sanitary details and kitchen basin design and much more other details related to the house.
Uploaded by:
Rashmi
Solanki

