Two Sections Of House Building Design Architectural Drawing
Description
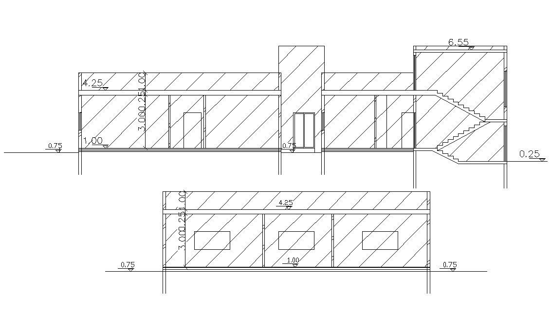
this is the two section of residential sections design with levels floor dimension details, stairs section details some hatching design in sections and much more other details in this drawing.
Uploaded by:
Rashmi
Solanki

