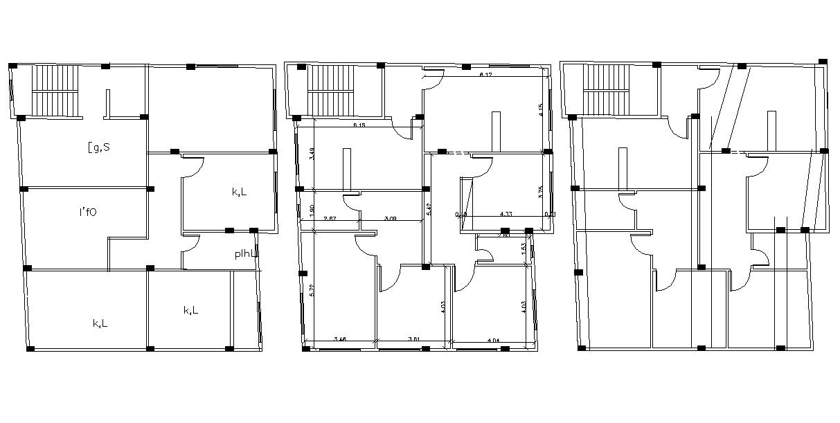
Apartment Building Floor Architectural Drawing With Dimension
Description
this is the three-floor plan of residential building design with internal dimension details, structural column layout plan.in this planning added drawing room, kitchen, bedrooms, toilets and much more other details related to drawing.
Uploaded by:
Rashmi
Solanki

