Factory Truss Roof Section With Construction Drawing
Description
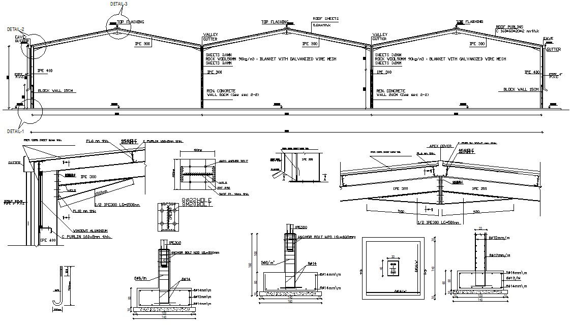
2d CAD drawing of factory truss roof section drawing with joint structure detail, RCC foundation column and blanket with galvanized wire mesh material detail. download DWG file of factory construction section drawing.
Uploaded by:

