Office Electrical And Drainage Line Layout Plan DWG
Description
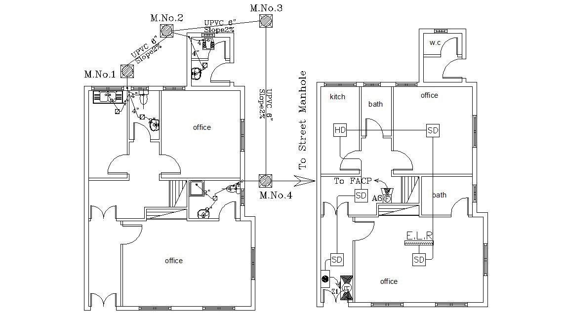
the office floor plan CAD drawing shows electrical and plumbing drainage gutter line plan which area directly connects to the chamber box and after joint to street manhole. download DWG file of office project CAD drawing.
Uploaded by:
