Construction Working Plan Of House Project Drawing
Description
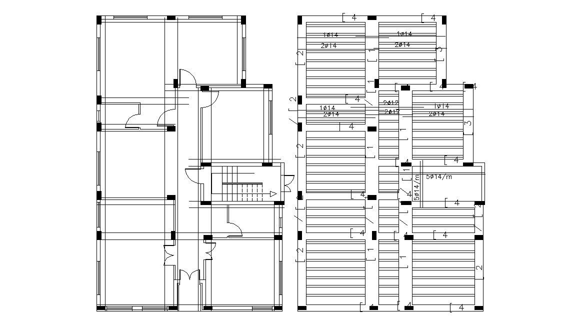
Construction working house plan AutoCAD drawing includes column layout plan and RCC slab structure reinforcement curtailment bars details that show main and distribution hook upset along with dimension detail.
Uploaded by:
