Bungalow Floor Plan And Terrace Design AutoCAD Drawing
Description
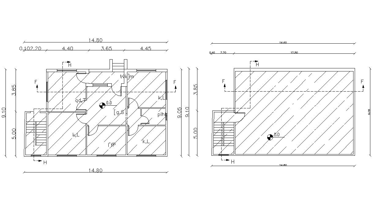
this is the floors plan of residential building design with ground and first-floor plan, working drawing dimension details, section line in plan.in this planning added foyer, drawing room, kitchen, dining area, bedrooms, toilets and terrace floor plan.
Uploaded by:
Rashmi
Solanki
