Apartment Building Floor Plan With Dimension AutoCAD File
Description
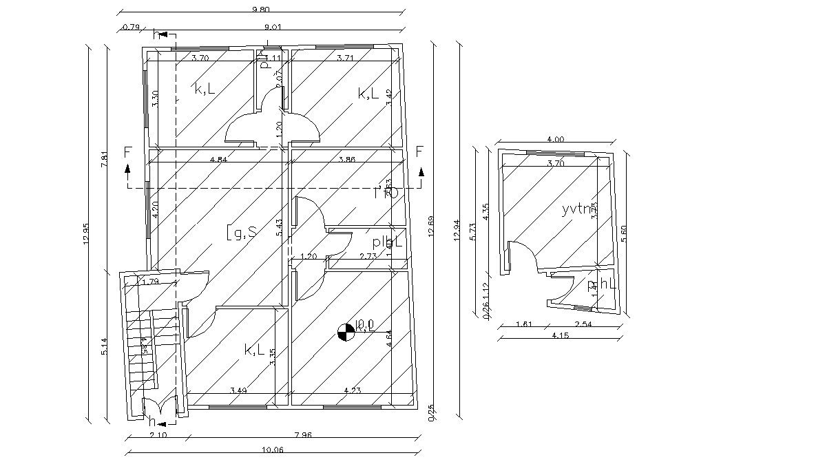
this is the planning of residential building design with working drawing dimension details, section line in the plan, some hatching design, in this plan added drawing room, kitchen, dining area, bedrooms, toilets and other more details.
Uploaded by:
Rashmi
Solanki
