Simple Building Floor Plan With Dimension CAD File
Description
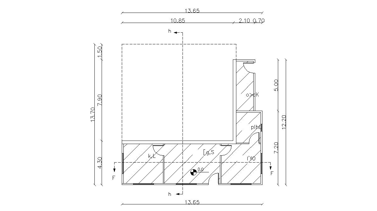
this is the drawing of simple building design with working drawing dimension details, back side open space area, doors and windows marking in plan also section line in it, it's an AutoCAD file.
Uploaded by:
Rashmi
Solanki

