Fully Furnished Modern Architectural Bungalow With Column Design
Description
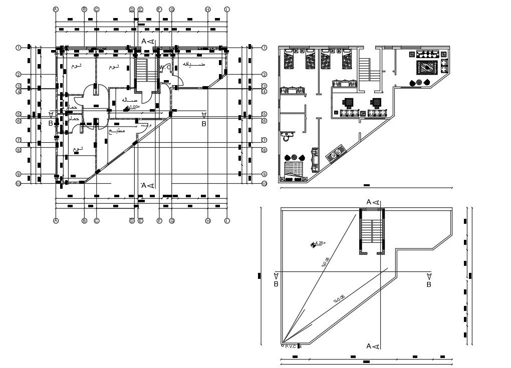
this is the residential house planning with structural column layout design, centerline marking details, furniture layout plan, terrace floor plan with peripheral dimension details, floor levels design, it's an architectural planning with all kinds of details.
Uploaded by:
Rashmi
Solanki

