Structural Column Foundation Design With Slab AutoCAD Drawing
Description
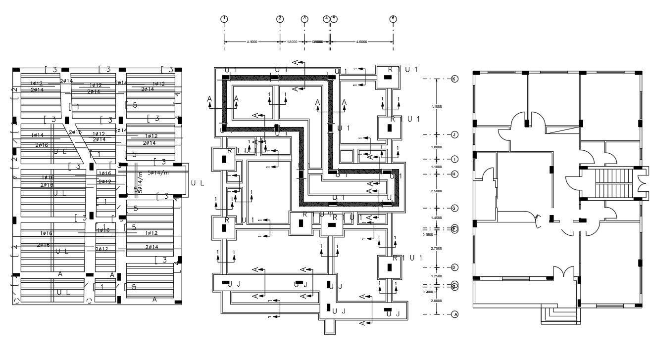
this is the drawing of column footing details plan with peripheral excavation design, structural column latout plan, residential floor planning, centerline plan with dimension details, reinforcement bars calculation and other more details related to drawing.
Uploaded by:
Rashmi
Solanki

