Structural Column Layout And Foundation Design CAD File
Description
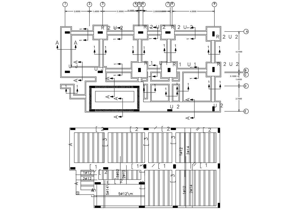
this is the drawing of column footing design with slab reinforcement bars calculation and shear wall details, peripheral excavation lineout, its structurally related drawing with all kind of details.
Uploaded by:
Rashmi
Solanki

