Commercial Building Floor Plan With Foundation Design CAD File
Description
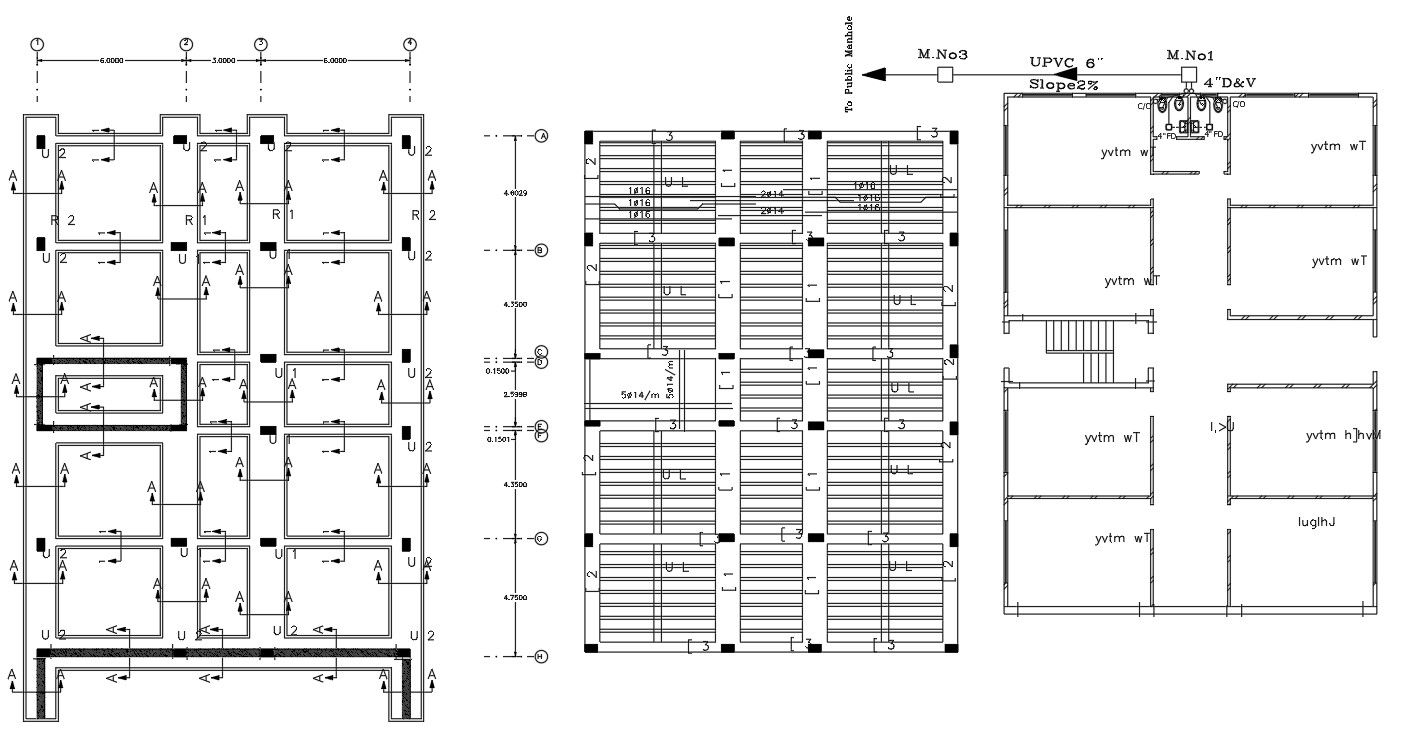
this is the drawing of a commercial office building layout plan with column foundation details drawing, centerline and working dimension design in this drawing, slab reinforcement bars calculation drawing.
Uploaded by:
Rashmi
Solanki

