Working Drawing of Commercial Building Design CAD File
Description
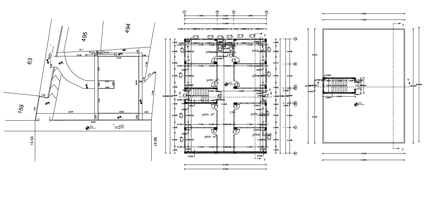
this is the drawing of office complex commercial building design with working drawing dimension details, terrace floor plan, centre line design, doors and windows marking in plan, survey plot and building demarcation details.
Uploaded by:
Rashmi
Solanki

