Bungalow Floor Plan With Terrace Levels Drawing DWG File
Description
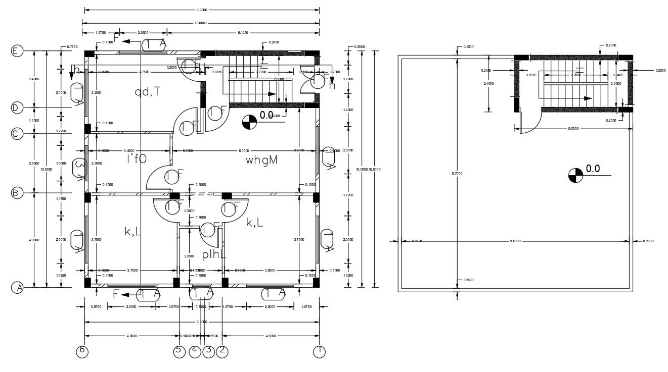
this is the planning of residential building design with terrace floor plan includes working drawing dimension details, structural column layout plan, section line in plan, also stair cabin working details.
Uploaded by:
Rashmi
Solanki

