Structural Column Foundation Design With Slab AutoCAD Drawing
Description
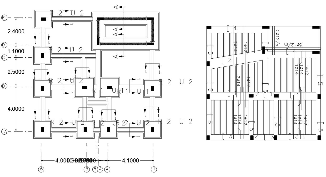
this is the drawing of the column footing design with centerline plan and working dimension details. also includes excavation line out marking, slab reinforcement bars details and beam-column in plan.
Uploaded by:
Rashmi
Solanki

