House Four Side Elevations And Section Design AutoCAD Drawing
Description
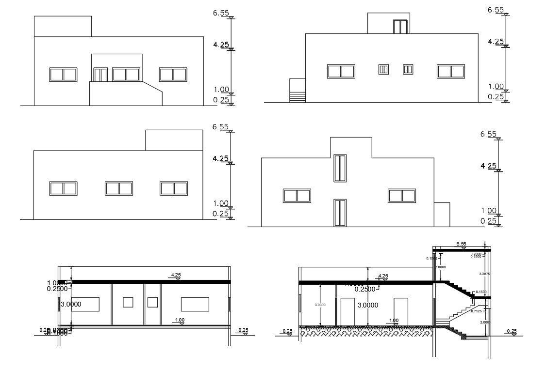
this is the drawing of simple residential building elevation design with two sections includes floor levels dimension details, doors and windows marking in it, also added stair section.
Uploaded by:
Rashmi
Solanki

