All Floors Plans Of Residential Building Design With Working
Description
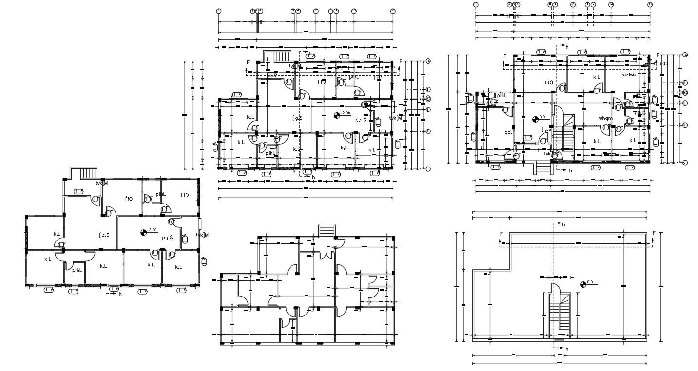
this is the residential building floors plan with working drawing dimension details, centerline plan, column layout design, terrace floor plan with levels marking, doors and windows demarcation in plan.
Uploaded by:
Rashmi
Solanki

