Two Story Residential Building Elevations Sections DWG File
Description
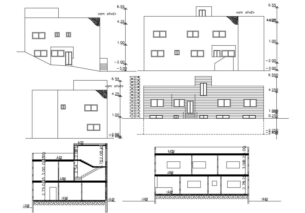
this is the four side elevations design with simple house also added two sections in it, floor levels dimension details, groove design in elevations, stair section details and other more details related to drawing.
Uploaded by:
Rashmi
Solanki

