All Floor Plan Of Commercial Building Design DWG File
Description
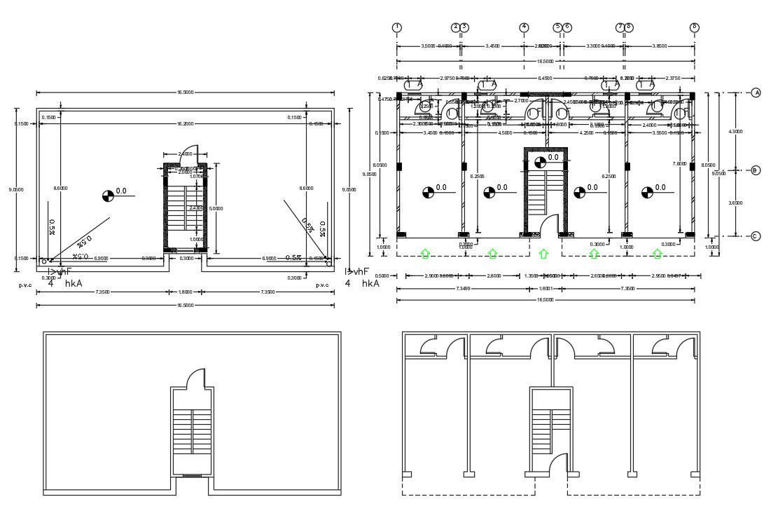
this is the planning of shops commercial building design with working drawing dimension details, structural column layout plan, doors and windows marking, terrace floor plan with rainwater pipes sloping details.
Uploaded by:
Rashmi
Solanki

