Column Foundation Design With Center line Plan AutoCAD Drawing
Description
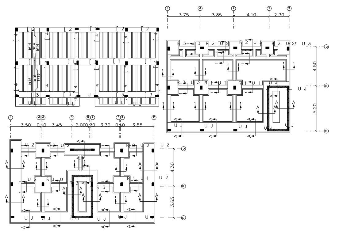
this is the drawing of column foundation details drawing with centerline plan, working drawing dimension details, excavation line marking in plan, column and beam design in slab drawing.
Uploaded by:
Rashmi
Solanki

