Architectural Bungalow Elevations And Sections AutoCAD File
Description
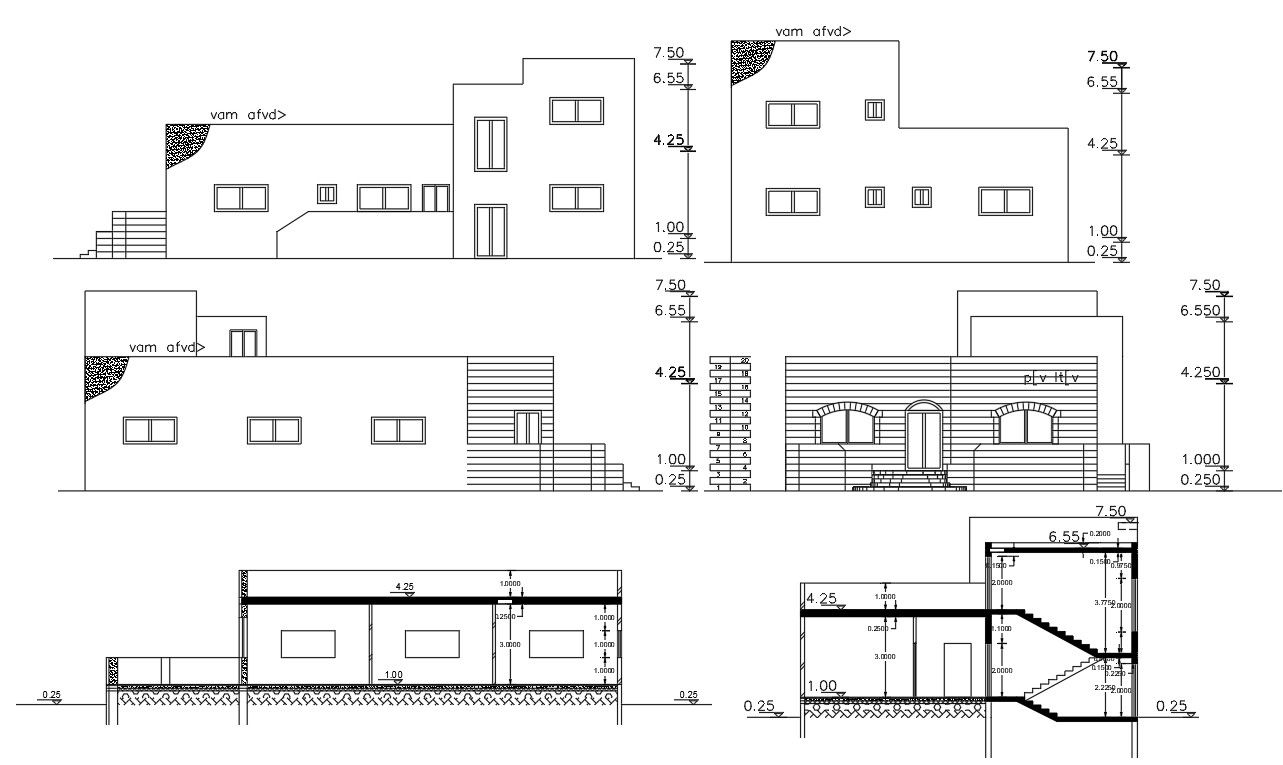
this is the drawing of simple house elevations and sections includes floor levels dimension details, some hatching design in elevation and sections, doors and windows marking in elevations and other more details.
Uploaded by:
Rashmi
Solanki

