Structural Column Foundation Design With Slab AutoCAD Drawing
Description
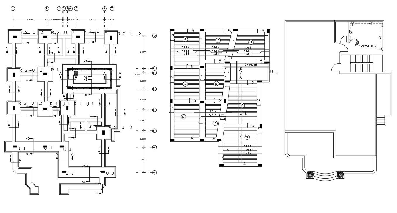
this is the drawing of column foundation design with centerline plan working drawing dimension details, column and beam marking in slab, reinforcement bars details in this drawing, and terrace floor plan.
Uploaded by:
Rashmi
Solanki

