Modern Bungalow Architectural Plan With Terrace Floor CAD File
Description
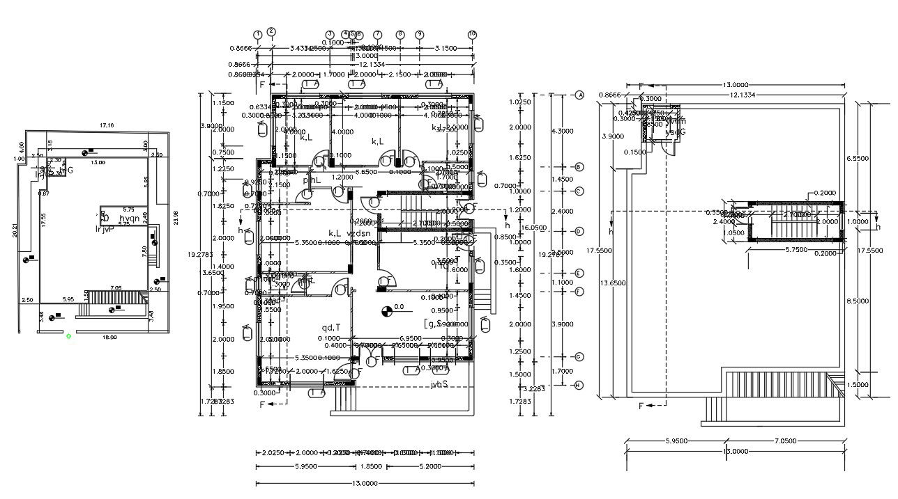
this is the planning of huge bungalow layout design with working drawing dimension details, terrace floor plan with stair cabin details, plot and building demarcation survey drawing with peripheral dimension details.
Uploaded by:
Rashmi
Solanki

