Many Floors Plans Of Hostel Building Design AutoCAD Drawing
Description
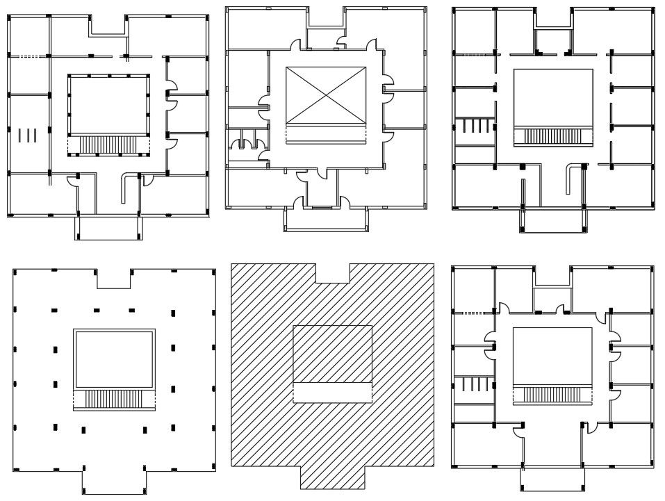
this is the planning of hostel design with column layout details, terrace floor plan.in this planning added many rooms for bed arrangement, common toilets details, cutout in middle part and other more details in this planing.
Uploaded by:
Rashmi
Solanki
