AutoCAD Drawing Of Structural Column Foundation Design With Slab
Description
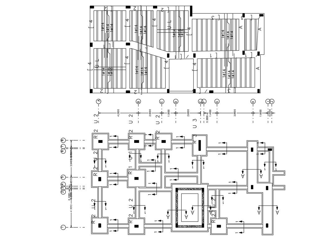
this is the drawing of column foundation design with centerline plan working drawing dimension details, column and beam details in slab plan, and also added reinforcement bars calculation details in it.
Uploaded by:
Rashmi
Solanki

