Single Floor House Elevations And Sections Architectural Drawing
Description
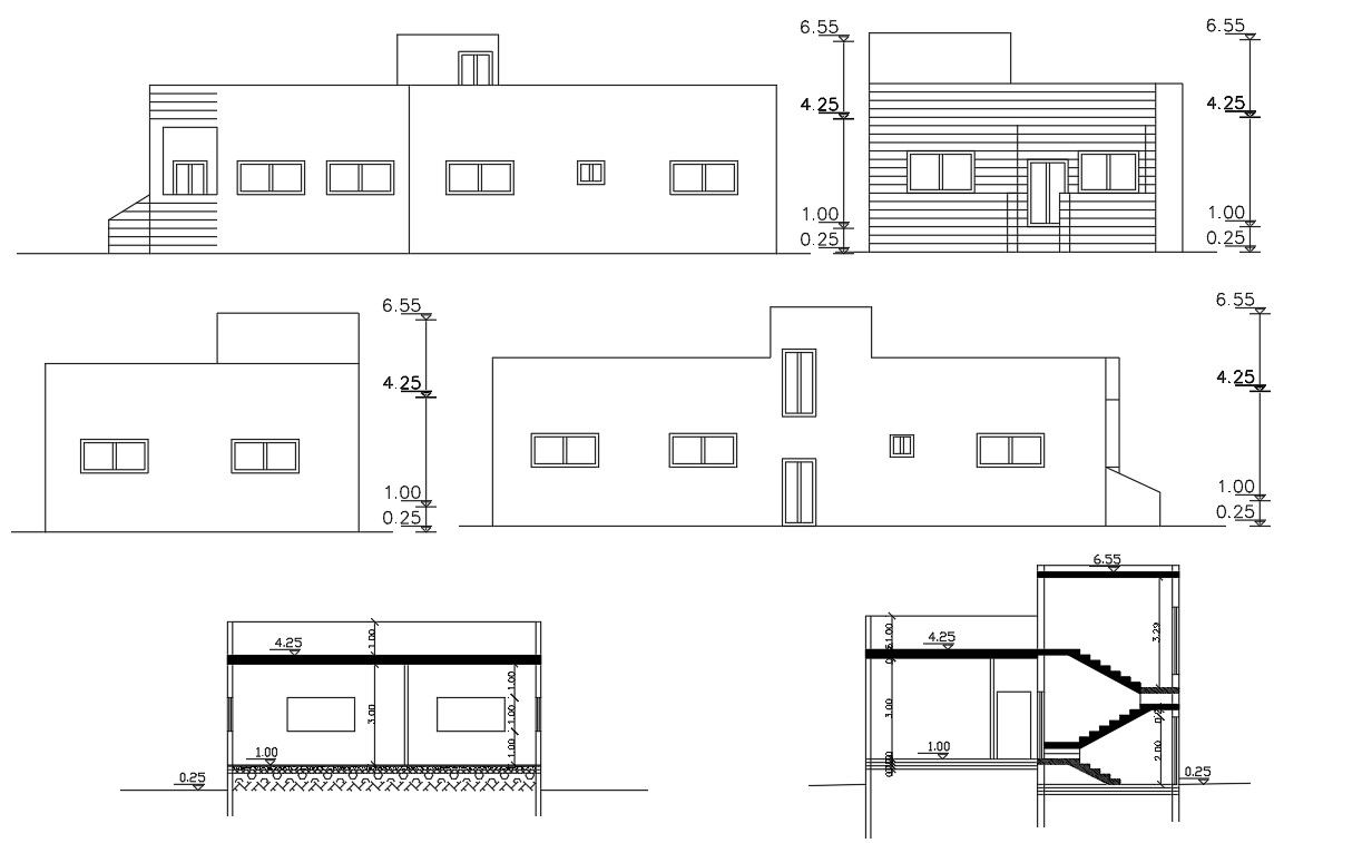
this is the drawing of simple house elevations and sections design with floor levels dimension details, groove design in elevation,doors, and windows marking in elevation. and other more details in it.
Uploaded by:
Rashmi
Solanki

