House Plumbing And Drainage Line Layout Plan Drawing
Description
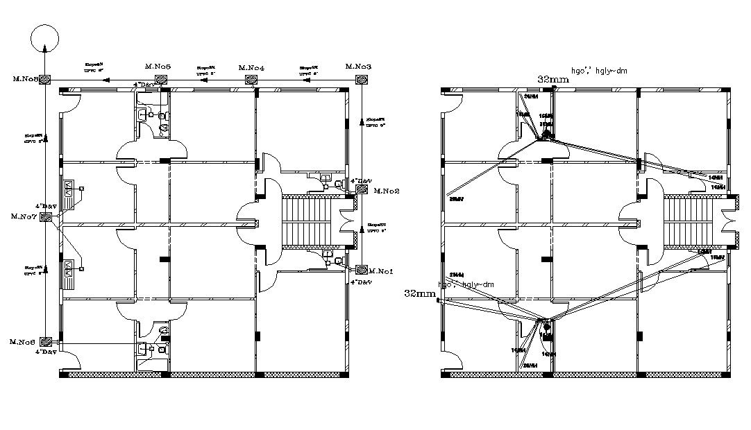
the architecture house floor plan CAD drawing includes plumbing layout plan and drainage line which is connected to chamber box. download DWG file of joint house floor plan design AutoCAD drawing and learn how to install the plumbing pipe detail.
Uploaded by:

