Architecture House Floor Plan Electrical Layout Drawing DWG
Description
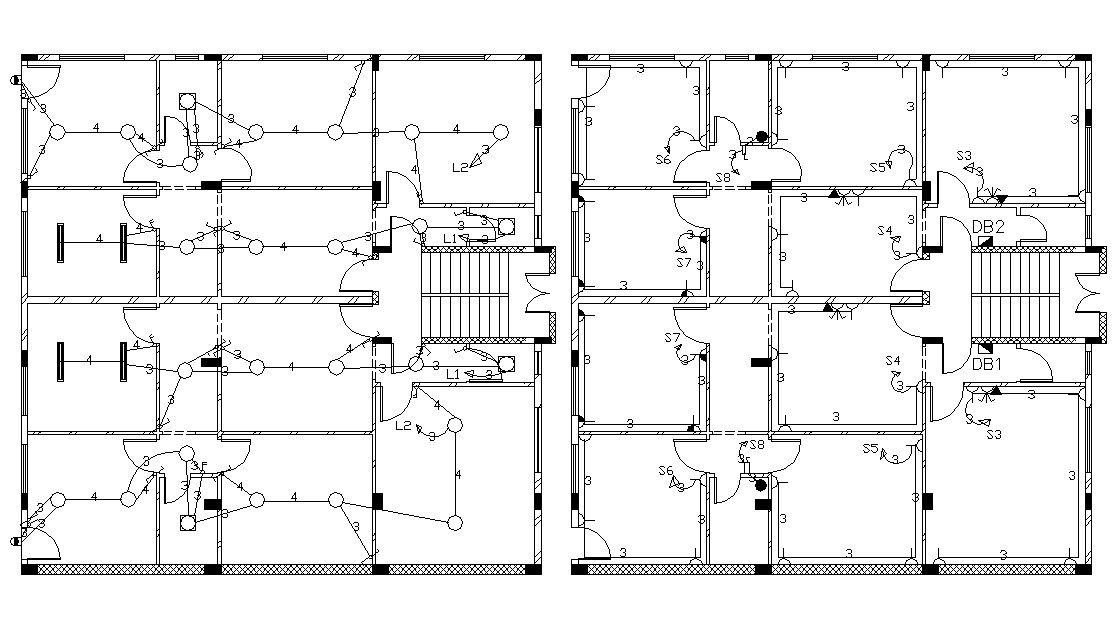
The architecture residence house 2 BHK floor plan CAD drawing includes electrical layout plan which shows false ceiling design and wiring plan drawing. Download House electrical plan CAD drawing DWG file.
Uploaded by:

