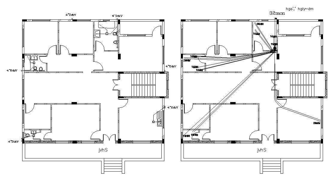
House Plumbing And Drainage Line Layout Plan Drawing
Description
2d CAD drawing of residence house ground floor plan with column layout design shows drainage and water pipeline plumbing latout plan design. download DWG file of house project floor plan design.
Uploaded by:
