Many Floors Plan Of Residential Building Design AutoCAD File
Description
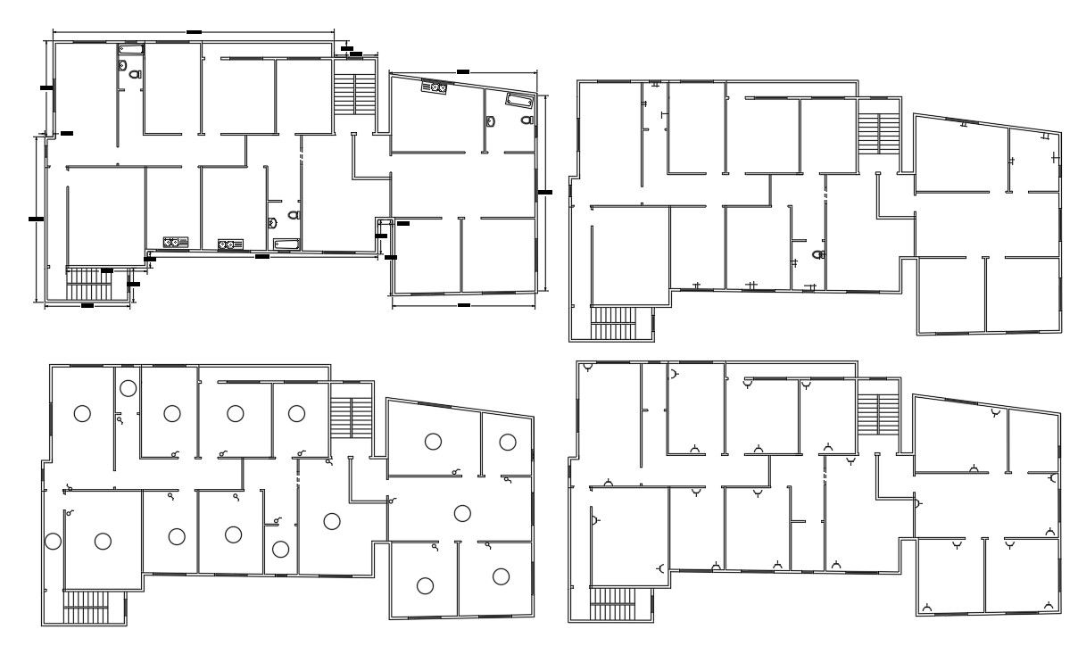
this is the drawing of apartment building design with toilets and kitchen sanitary layout plan, it's a four floors plan with different details. download the house design planning and use in related projects.
Uploaded by:
Rashmi
Solanki

