Four Floors Apartment Elevations And Section AutoCAD Drawing
Description
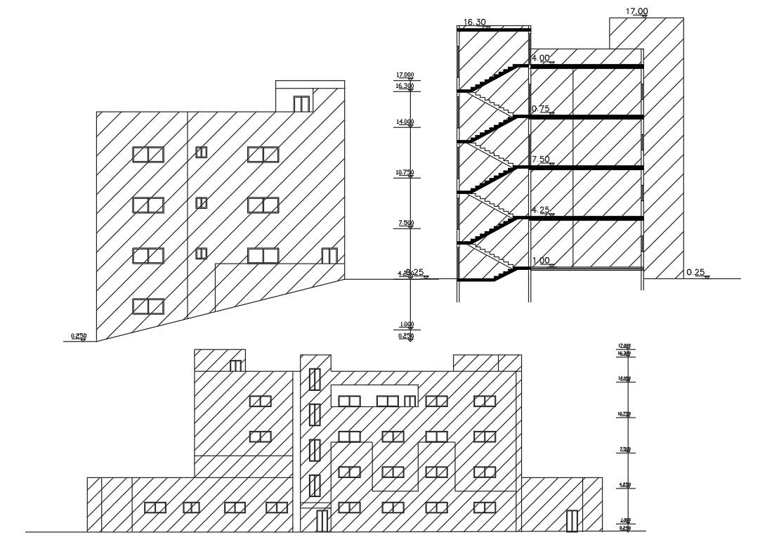
this is the drawing of simple apartment elevations and section. standard stairs sections design with floors levels dimensions, hatching design in elevations and other more details related to drawing.
Uploaded by:
Rashmi
Solanki

