Many Floors Plan Of Residential Building Design With Dimension CAD
Description
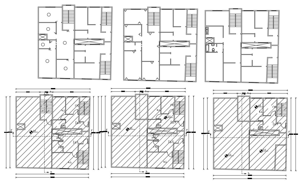
this is the planning of house types building design with separate foyer and stairs.in this planning added three units of house plan with working drawing dimension details.cutout in plan and other more details.
Uploaded by:
Rashmi
Solanki

