Electrical Layout Plan Of House Project CAD Drawing
Description
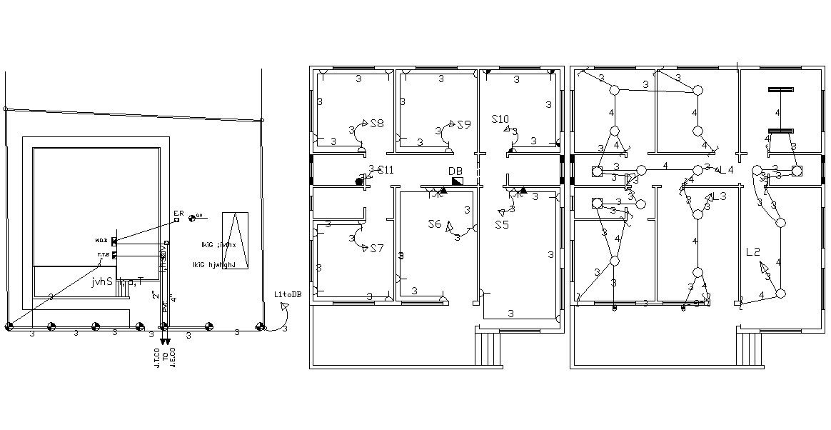
The architecture residence house floor [plan CAD drawing includes false ceiling point derail and wiring layout plan design which is guiding the way of electrical wiring installation detail. download DWG file of house electrical plan design.
Uploaded by:

