Commercial And Residential Building Plan Architectural Drawing
Description
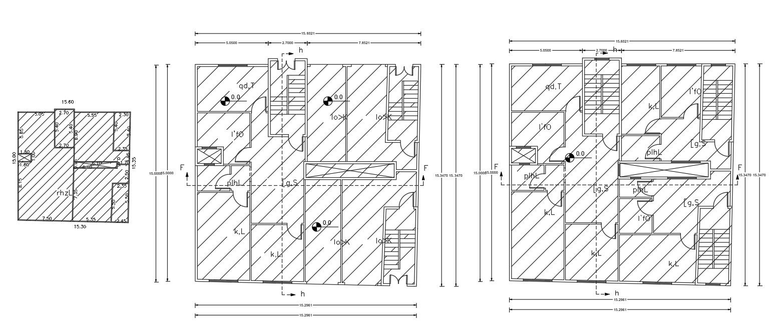
this is the planning of commercial and residential building design with working drawing dimension details.in this planning added on first floor shops and house design and other floor only house design, some simple hatching desing in floors plan.
Uploaded by:
Rashmi
Solanki
