Construction House Working Plan With Dimension
Description
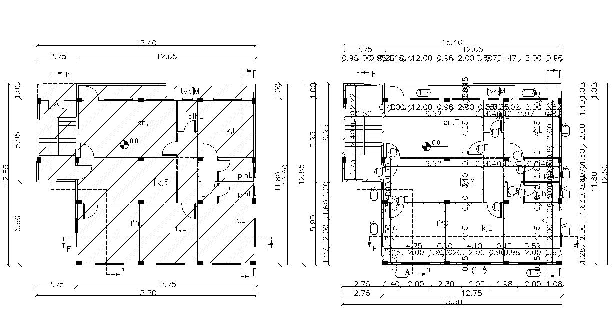
2d house construction plan CAD drawing includes working dimension, column layout plan and wall thickness size detail. this drawing is useful for civil engineer that how to begining the construction house plan. download DWG file of house working plan design.
Uploaded by:
