House Building Section Drawing DWG File

House Building Section Drawing DWG File
Profile

Uploaded by:

Komal

Description
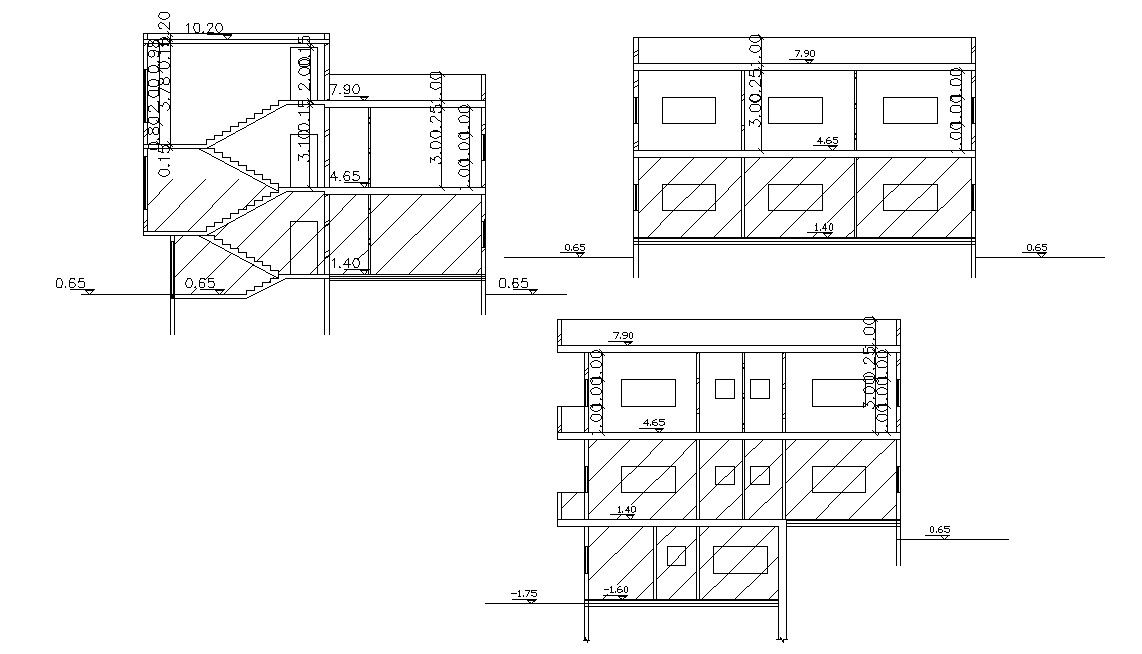
2D CAD drawing of residence house building section drawing with dimension detail. this drawing shows RCC floor, slab and staircase detail. download house building DWG file CAD drawing.
Profile

Uploaded by:

Komal

find Latest

Related Files

WhatsApp Chat