LOGIN
HOME
CATEGORIES
UPLOAD FILE
PRICING
HOUSE PLAN
ABOUT US
CONTACT US
House Floor Plan With Working Dimension
Home
Categories
Architecture
Bungalow House Design
House Floor Plan With Working Dimension
Uploaded by:
Komal
View Profile
View Profile
Description
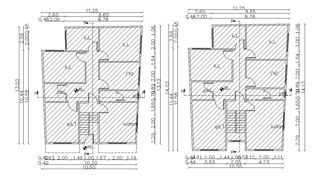
Download free DWG file of residence house ground floor plan design with dimension detail and some hatching drawing get more detail of construction house project drawing.
File Type:
DWG
File Size:
109 KB
Category::
Architecture
Sub Category::
Bungalow House Design
type:
Gold
Uploaded by:
Komal
View Profile
Download
Add to libary
find Latest
Related
Files