Commercial Building Floor Plan With Dimension Architectural File
Description
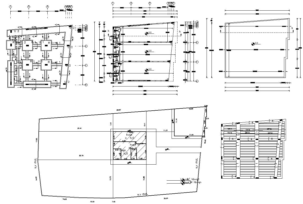
this is the drawing of commercial shops design with working drawing dimension details, column layout plan, column foundation with centerline dimension details, site and plot demarcation design, beam and column marking in slab.
Uploaded by:
Rashmi
Solanki

