Commercial With Apartment Building Floor Plan CAD Drawing
Description
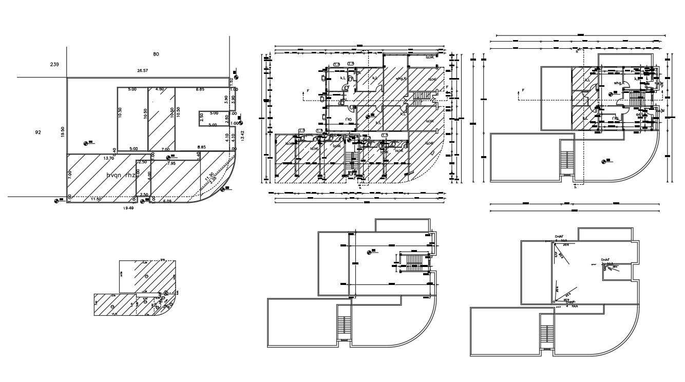
the architecture ground floor commercial shop layout plan and apartment typical floor plan with dimension detail. download dwg file of typical floor plan cad drawing includes terrace plan and site plan with area survey detail.
Uploaded by:
