House Site Plan With Area Survey CAD Drawing
Description
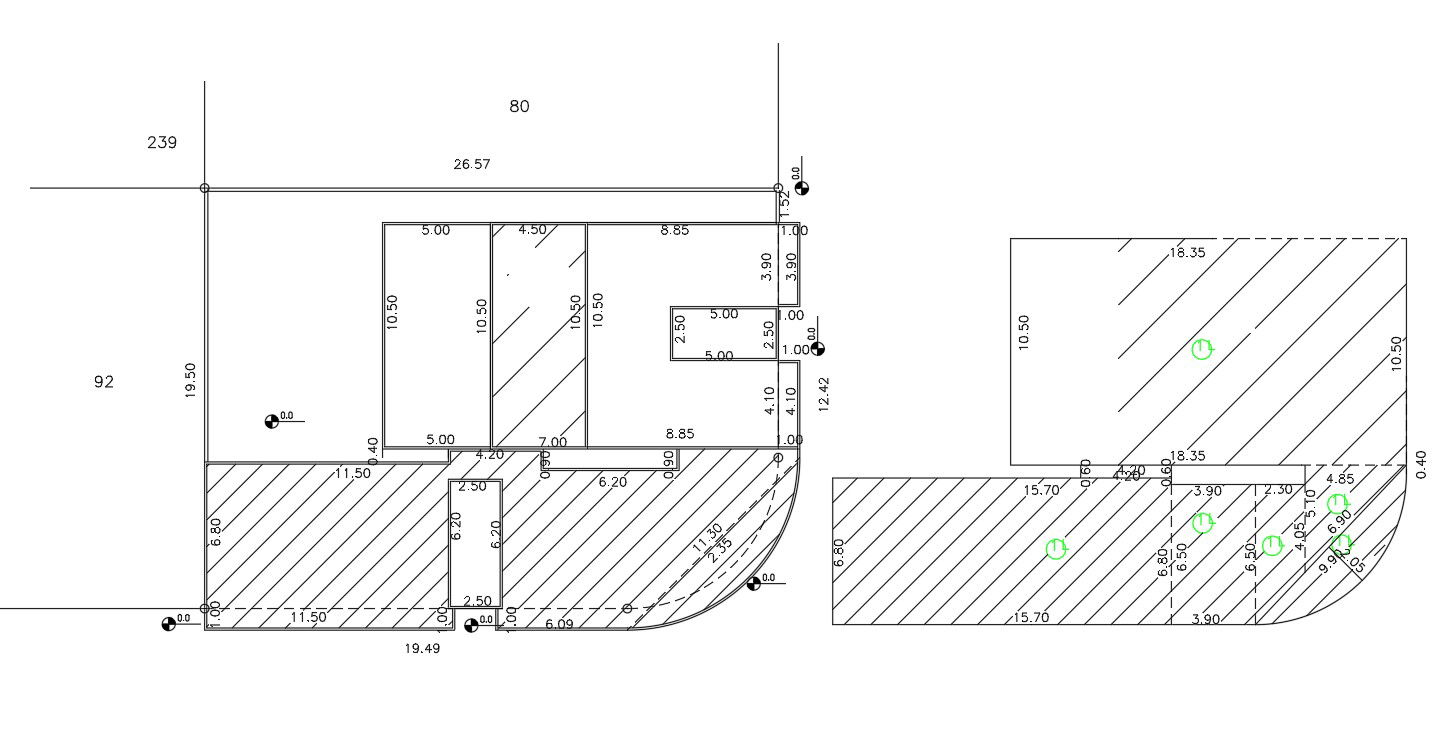
Download free DWG file of house construction site plan with area survey detail CAD drawing includes house plot, demarcation plan, compound wall boundary and build-up area with margine dimension detail. download free DWG file of house site plan drawing.
Uploaded by:

