Construction House Working Plan AutoCAD Drawing
Description
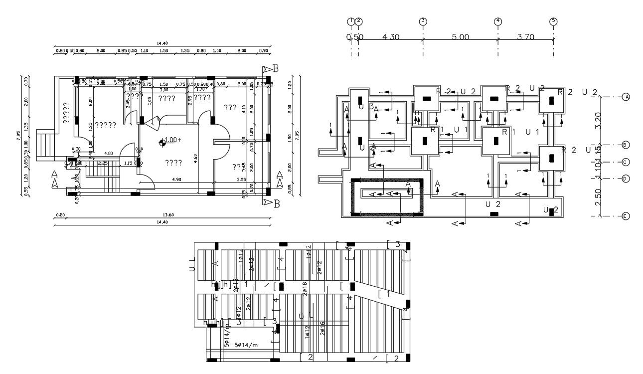
2d CAD drawing of residence house construction plan design shows the column foundation layout plan, excavation with plinth beam, and RCC slab reinforcement structure with a joint bar with all dimension details. download DWG file of construction working plan CAD drawing.
Uploaded by:
