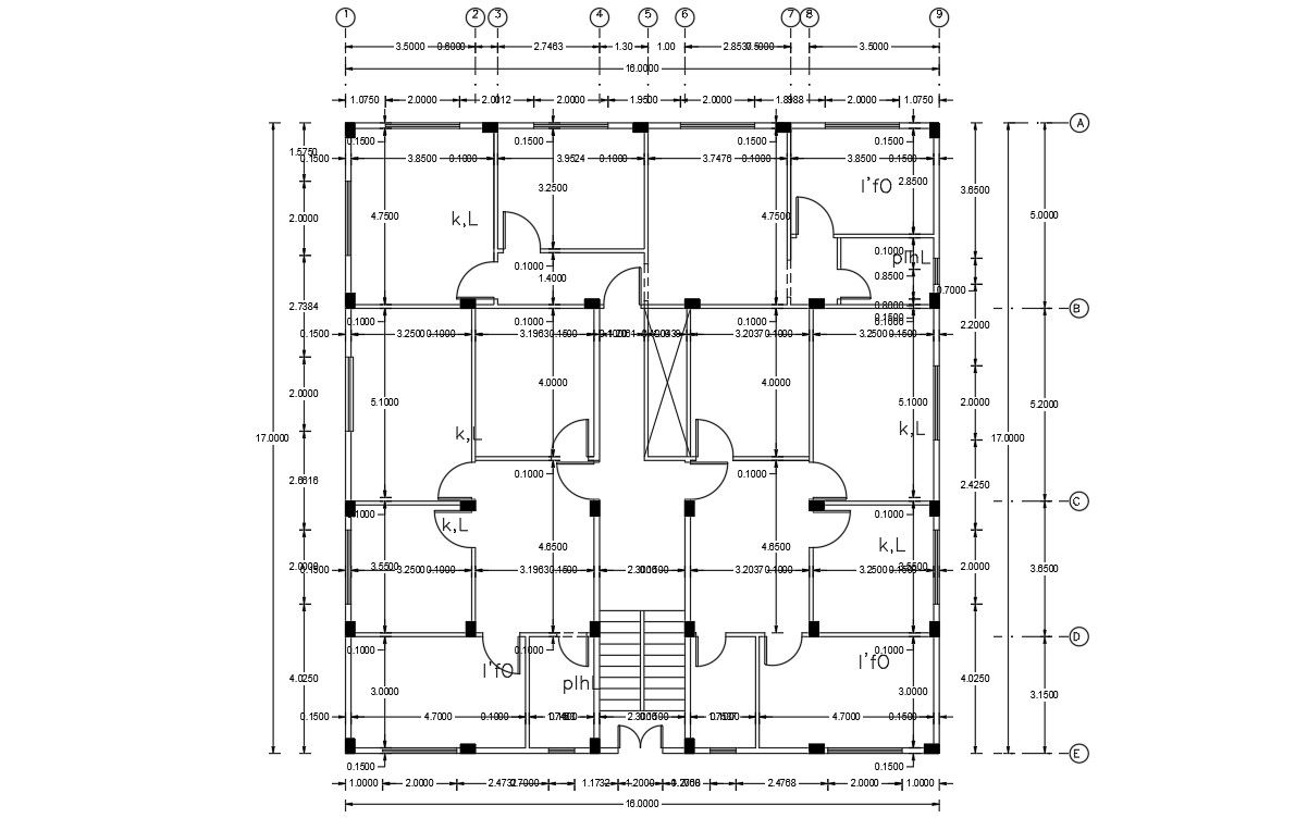
Apartment Typical Floor Layout Plan With Dimension
Description
The apartment cluster typical floor plan CAD drawing includes 2 and 3 BHK house design, column layout plan and working dimension detail. download DWG file of apartment cluster floor plan drawing and has 3 unit house plan.
Uploaded by:

