Commercial Building Floors With Electrical Plan AutoCAD File
Description
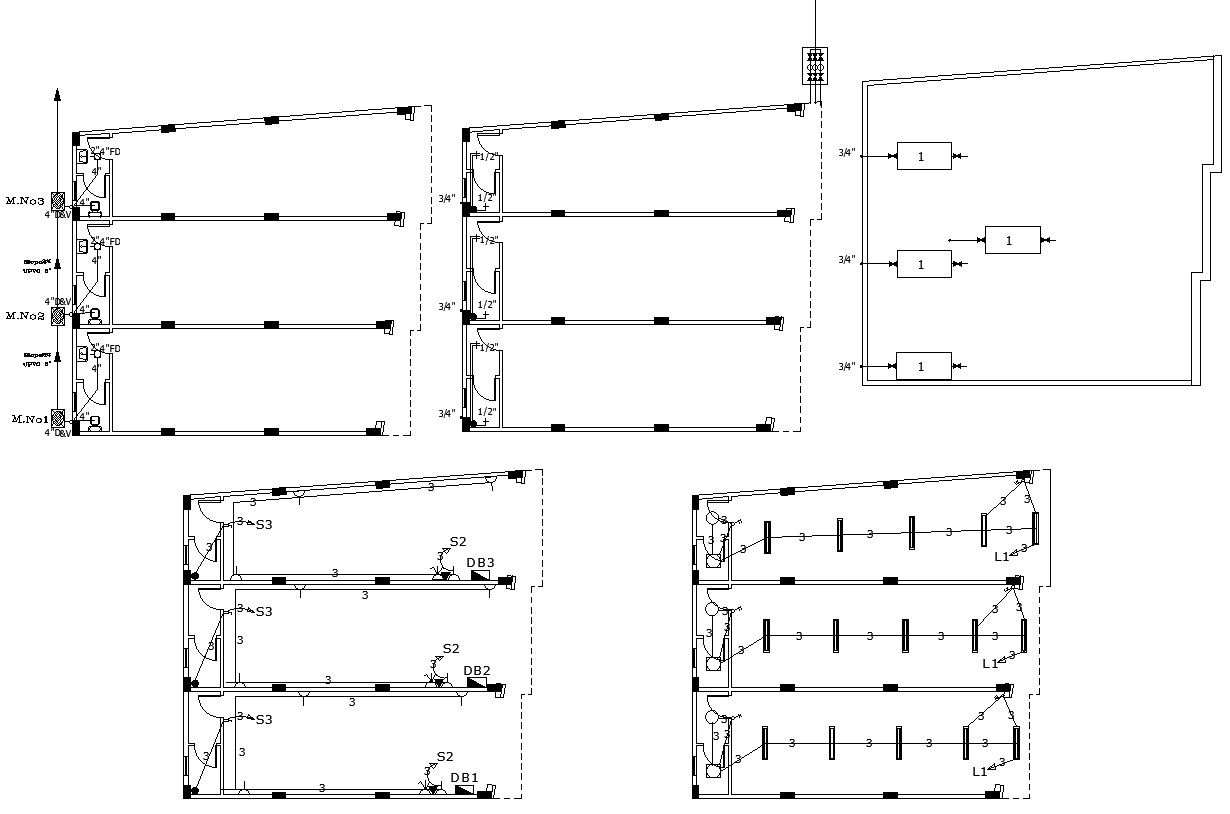
this is the Architectural commercial many floors plan with structural column layout details, toilet plumbing details with sanitary design, electrical floor plans, ground floor plan with manhole design, terrace floor plan with solar plants details.
Uploaded by:
Rashmi
Solanki

