Architectural Lavish House Building Plan With Foundation Design
Description
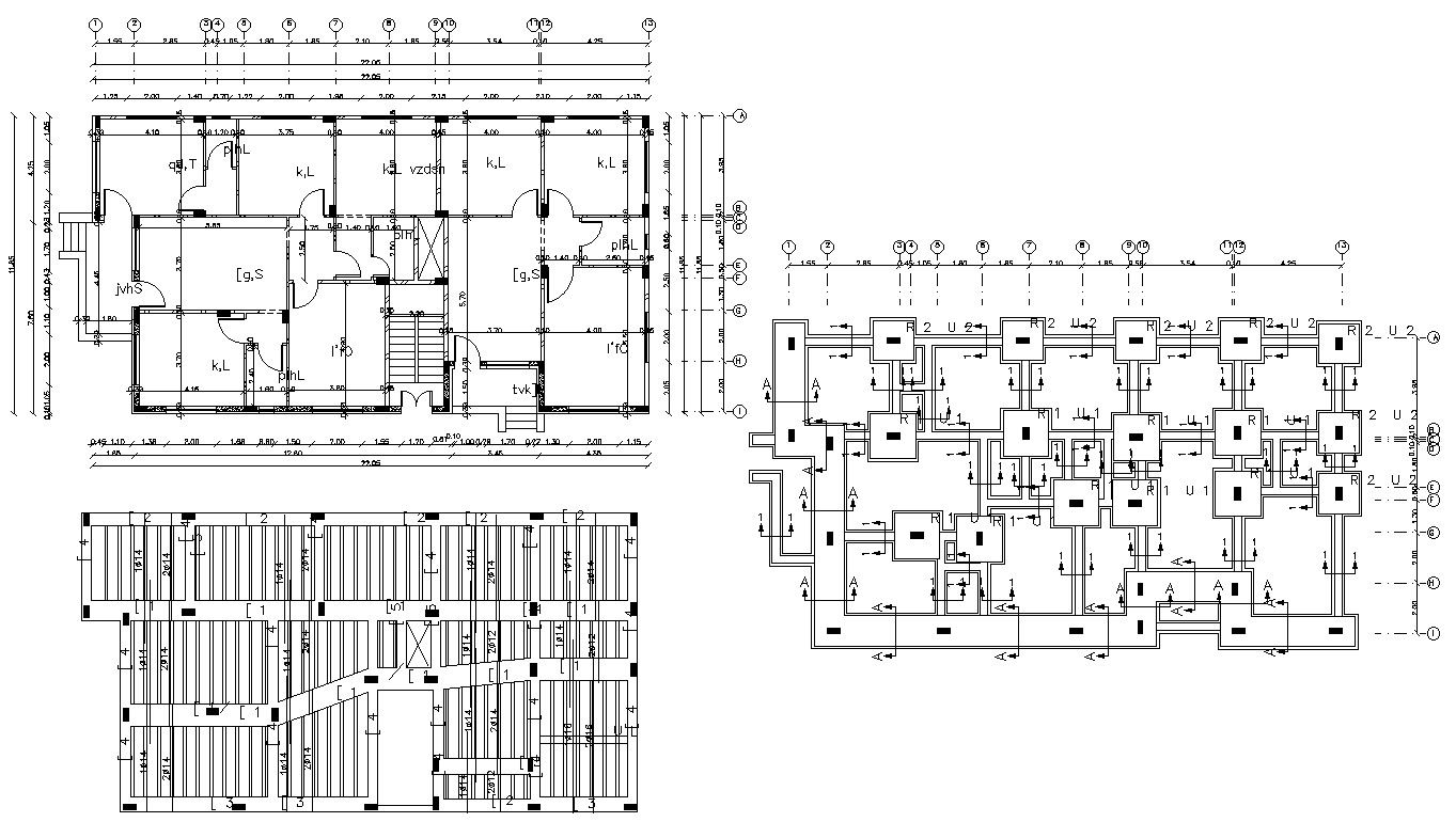
this is the planning of huge bungalow layout design with working drawings dimension details, column footing design with centerline plan and dimension, beam and column marking in slab, column layout in plan.
Uploaded by:
Rashmi
Solanki
