Huge Residential Bungalow With Working Drawing CAD File
Description
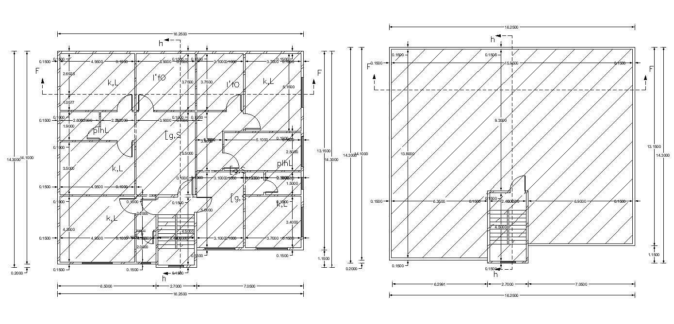
this is the drawing of lavish bungalow design with working drawing dimension details with a terrace floor plan. in this drawing added many rooms, drawing room, kitchen, dining rooms, toilets, and other rooms and other more functions in it.
Uploaded by:
Rashmi
Solanki

